Бесплатно по РФ +7 (800) 707-11-74
+7 (991) 911-73-76
+7 (960) 286-81-87
Email sale@220energy.ru
Вводно-распределительные устройство ВРУ-8505-4-630 630 А в сборе (6 панелей)
Вводно-распределительные устройства ВРУ 8505 используются для электроснабжения жилых и коммерческих зданий.
Устройства ВРУ 8505 (УВР 8505) предназначены для применения в электрических сетях переменного тока (трехфазных) напряжением 380 или 220 Вольт и частотой 50 Гц. Основные функции ВРУ 8505 - прием, распределение и учет потребленной электроэнергии, а также защита линий от коротких замыканий и перегрузок.
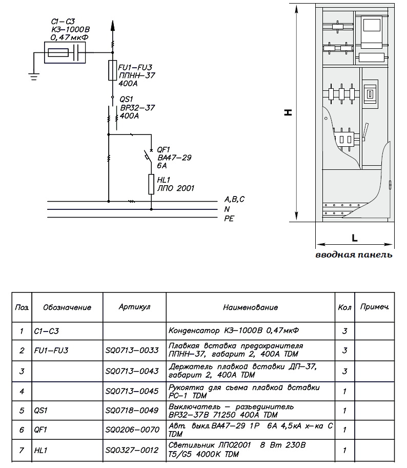
УВР 8505 собираются из вводных, распределительных и панелей автоматического включения резерва, а также панели электроснабжения систем противопожарной защиты. Все эти установки предусматривают одностороннее обслуживание и выполняются в виде оснащенных дверцами шкафов, внутри которых размещается основное и вспомогательное электрооборудование.
ОСНОВНЫЕ ХАРАКТЕРИСТИКИ
КОНСТРУКЦИЯ
ПРЕИМУЩЕСТВА
ВНЕШНИЙ ВИД

СОСТАВ ВВОДНО-РАСПРЕДЕЛИТЕЛЬНОГО УСТРОЙСТВА ВРУ-8505-4-40:
- Вводная панель 4ВП-4-40-0-30 -2 шт

- Распределительная панель 3РП-113-30 - 2 шт


| Кол-во отходящих линий (трехфазных) | 22 |
Похожие товары