Бесплатно по РФ           +7 (800) 707-11-74

                               +7 (991) 911-73-76

       +7 (960) 286-81-87

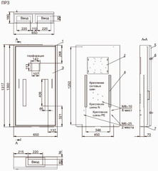
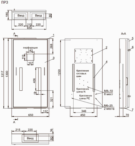
Пункт распределительный ПР11-3108-54

Пункт распределительный ПР11-3108-54 IP54
Пункт распределительный ПР11-3108-54 IP54 Используются для сборки пунктов распределительных серии ПР11, предназначенных для приема и распределения электроэнергии, защиты электроустановок напряжением 380/220В при перегрузках и коротких замыканиях, а также нечастых (не более 6 в час) включений и отключений электрических цепей.
Тип Пункт распределительный
Ном. ток вводного автомата, А 400
Кол-во отходящих линий (однофазных) 0
Кол-во отходящих линий (трехфазных) 10
Степень защиты IP54
Комплектация TDM ELECTRIC
Габарит корпуса 3