Бесплатно по РФ           +7 (800) 707-11-74

                               +7 (991) 911-73-76

       +7 (960) 286-81-87

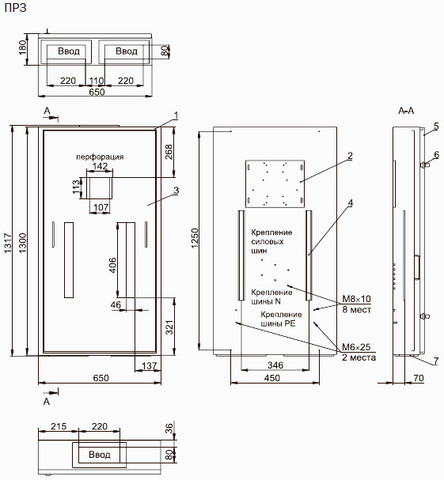
Пункт распределительный ПР11-3080-31

Пункт распределительный ПР11-3080-31 IP31
Пункт распределительный ПР11-3080-31 IP31 Используются для сборки пунктов распределительных серии ПР11, предназначенных для приема и распределения электроэнергии, защиты электроустановок напряжением 380/220В при перегрузках и коротких замыканиях, а также нечастых (не более 6 в час) включений и отключений электрических цепей.
Тип Пункт распределительный
Ном. ток вводного автомата, А 250
Кол-во отходящих линий (однофазных) 24
Кол-во отходящих линий (трехфазных) 2
Степень защиты IP31
Комплектация TDM ELECTRIC
Габарит корпуса 3
Заказ в один клик
Настоящим подтверждаю, что я ознакомлен и согласен с условиями оферты и политики конфиденциальности.