Бесплатно по РФ                   +7 (800) 707-11-74

 WhatsApp                                +7 (991) 911-73-76

       +7 (960) 286-81-87

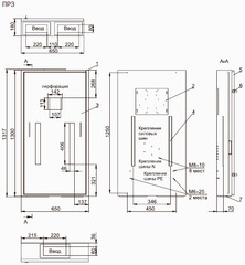
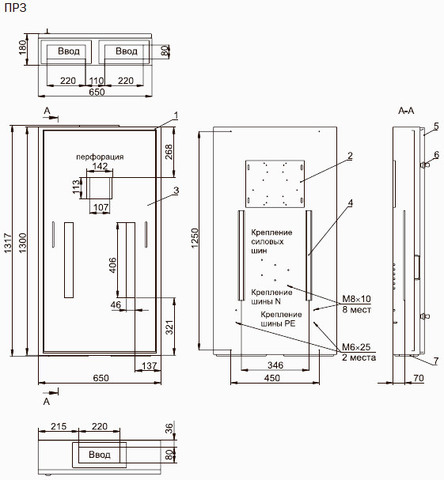
Пункт распределительный ПР11-3076-31

Пункт распределительный ПР11-3076-31 IP31
Пункт распределительный ПР11-3076-31 IP31 Используются для сборки пунктов распределительных серии ПР11, предназначенных для приема и распределения электроэнергии, защиты электроустановок напряжением 380/220В при перегрузках и коротких замыканиях, а также нечастых (не более 6 в час) включений и отключений электрических цепей.
Тип Пункт распределительный
Ном. ток вводного автомата, А 250
Кол-во отходящих линий (однофазных) 30
Кол-во отходящих линий (трехфазных) 0
Степень защиты IP31
Комплектация TDM ELECTRIC
Габарит корпуса 3