Бесплатно по РФ +7 (800) 707-11-74
+7 (991) 911-73-76
+7 (960) 286-81-87
Email sale@220energy.ru
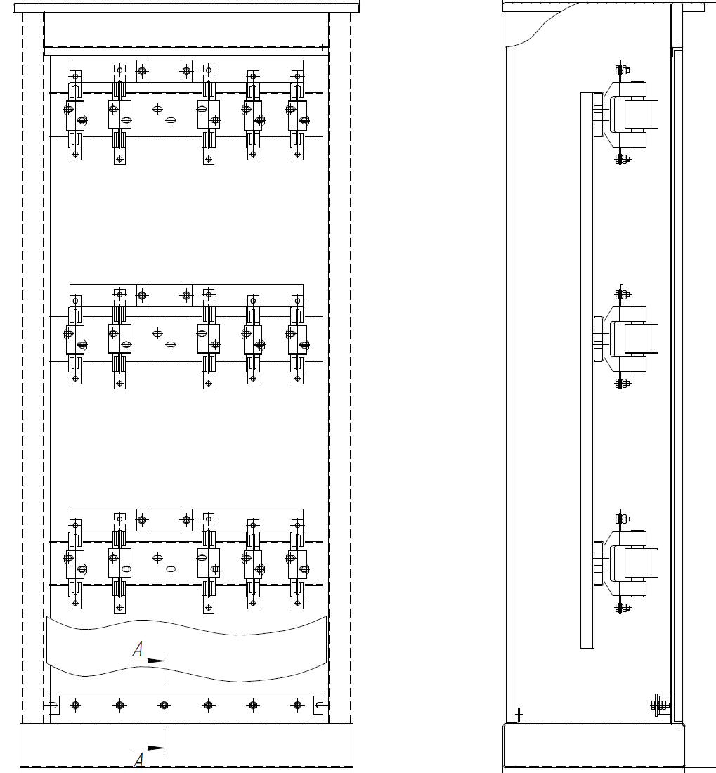
Кабельный киоск низкого напряжения. Линии: ППН-37 2х400 А, ППН-35 3х250А . Класс защиты IP54. Производство Россия. Оцинкованные монтажные платы.
Назначение и область применения:
Киоски кабельные КЛ-209 и КЛ-211 предназначены для приема, учета и распределения электрической энергии с напряжением 380/220В в трехфазных сетях переменного тока с частотой 50Гц, с глухозаземленной нейтралью, а так же для защиты отходящих линий от токов перегрузки и короткого замыкания с помощью предохранителей (ПН, ППН,ППНИ).
КЛ-209/209М и КЛ-211 удовлетворяют требованиям ТУ 3430-001-35097485-2018
Типовая комплектация КЛ-209 состоит из трех групп предохранителей ППН-250 и двух групп предохранителей ППН-400.
По согласованию с заказчиком можно установить две секции шин (при снятии шинных перемычек), произвести алюминиевую или медную ошиновку

| Материал корпуса | Сталь 1.2 мм |
| Габариты, мм ВхШхГ | 1700×800×450 |